Steel Tree House. Joel Sherman. Стальной Деревянный Дом

Это было удачей, для архитектора Joel Sherman   из   GLS Design   , когда обратившийся к нему клиент, попросил спроектировать для него резиденцию на озере Tahoe.   Sherman , провел некоторое время там исследуя местную среду, описывает местную архитектуру как преимущественно составленую из простых деревянных построек в стиле ”bear-moose-fish-motif”. "Таким образом часто люди зацикливаются ностальгии к прошлому,возводя фасады аля ретро" говорит   Sherman , "и исход - фальшивка фасада приставленная к современному коробке.” С конструкцией   Stal Tre Hus   (стальной древесный дом) посреди растущего 6 000 поселка, архитектор и его клиент намереваются доказать, что возможно создать Современный дизайн, который впишется в среду не нарушая её.

 

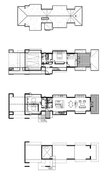
Узкий участок, размером 55 на 120 футов, сужается к одному краю. Вместо того, чтобы бороться с естественными контурами участка,   Sherman   использовал этот нисходящий наклон как главный элемент дизайна. ”Слишком часто люди влюбляются в естественную среду и затем уничтожают деревья и изменяют её,” жалуется архитектор . Вместо того, чтобы вырубать деревья или изменять ландшафт,   Sherman   создал объём, где вертикальные плоскости пронизывают участок, опираясь на колонны поддерживающие большую часть резиденции, которая подвешена высоко под кронами окружающих деревьев.  


Наибольшая часть резиденции на 2 500 квадратных футов,- гараж, размещенный в первом уровне и спрятаный за раздвижными дверями. На том же самом уровне как и гараж, деревянный помост приводит к главному входу в резиденцию. Оказавшись внутри, вы можете попасть в спальни хозяев, ванную комнату, выходу в холл, и лестницу в гараж. Встроеная лестничная клетка из стекла-и-стали приводит к уровню ниже, в котором расположены две спальни, гостиная, кухня и столовая.




Из-за резких холодных зим, другой важной задачей, было правильно продумать кровлю. Большинство окружающих резиденций использует обычную скатную кровлю.   Sherman , однако, выбрал Современную, плоскую альтернативу.  

alt

Слияние внутренних и наружних площадей был важен и для владельца и для архитектора. Sherman говорит, что использование древесины было необходимым требованием проекта - от внутренних пространств облицованных тасманским красным дубом, до вишневых панелей красного дерева, на внешней облицовке дома. Другое средство слияния внутренних и внешних пространств - использование стекла. Мало того, что Sherman   использовал большие плоскости застекления и обернутых стеклом углов, но он также проектировал внутренние пространство так, чтобы хозяева могли любоваться ландшафтом прямо из дома..  


Stal Tre Hus   - результат комбинированных усилий архитектора и его клиента. Архитектор успешно принес Современную чувственность дизайна в среду, в то время как заказчик, владелец деревянной строительной компании, активно участвовал в строительстве его дома мечты. Желая учавствовать в проекте насколько возможно, заказчик обучился сварке и лично сварил каждую стальную деталь в своем доме.

....................................
Источник:
architektonika.ru

archrecord.com