«Дома прерий» Ф.Л. Райта

Райт   (Wright) Франк Ллойд (8.6.1869, Ричленд-Сентер, штат Висконсин, — 9.4.1959, Тейлизин-Уэст, штат Аризона), американский архитектор, основатель и ведущий мастер школы   органической архитектуры . У же в первых постройках Р. симметричные схемы учителя получают напряженно-экспрессивную романтическую трактовку (дом Чарнли в Чикаго, 1891). Романтические тенденции усиливаются у Р. после 1893, когда он начинает работать самостоятельно, и особенно с 1900 — в его серии «домов прерий». Среди них выделяются дом Уиллитса в Хайленд-Парке (штат Иллинойс, 1902) и дом Роби в Чикаго (1909), в которых Р. под влиянием японской архитектуры впервые осуществляет идею единой системы «перетекающих» внутренних пространств. Непрерывными горизонтальными полосами окон, террасами и лоджиями, свесами кровель интерьеры этих распластанных построек естественно связываются с окружающей средой. Органичное включение архитектурных форм в ландшафт сочетается у Р. с раскрытием специфических свойств строительных материалов и конструкций. В 30-е гг. Р. становится лидером течения, противопоставляющего конформистским и техницистским тенденциям функционализма идею архитектуры — связующего звена между человеком и природой. Программное произведение Р. этого периода — дом Кауфмана («Дом над водопадом») в Бер-Ране (штат Пенсильвания, 1936)   смело вынесенные консоли которого продолжают уступы скал над лесным ручьем. Опираясь на аналогии с природными формами, Р. создаёт «древоподобные» структуры высотных зданий с бетонными «стволами», вмещающими вертикальные коммуникации, и расходящимися от них «ветвями» — консольными перекрытиями .

  Творчество Р. образует прямую связь между поисками архитекторов конца 19 в. и достижениями мировой архитектуры середины 20 в. Сохраняя верность сентиментальной мечте о жизни среди природы и усматривая в принципах органической архитектуры возможности гуманизации человеческого существования, Р. был и одним из основоположников   рационализма   в современной архитектуре. В социально-философском плане гуманизм Р. сочетался с индивидуализмом (часто в духе Ф. Ницше), устремленным скорее к свободе личности от общества, чем к её свободе, обеспеченной обществом.

Ф . Л . Райт . Дом Роби (Frederick Robie House)

Дом Роби, спроектированный Фрэнком Ллойдом Райтом в 1908 г. в стиле « домов прерий » и построенный в 1908 — 1910 г.г. в Чикаго, является одним из лучших произведений первого периода творчества Райта.

 

Дом Роби (Frederick Robie House), Чикаго (Иллинойс), 1908.

Особняк выходит продольным фасадом на улицу. В связи с этим, вероятно, Райт использовал нехарактерные для него приемы:

  • палисадник перед домом;
  • расположение главных помещений на втором этаже.

Дом Роби (Frederick Robie House). Перспективное изображение.

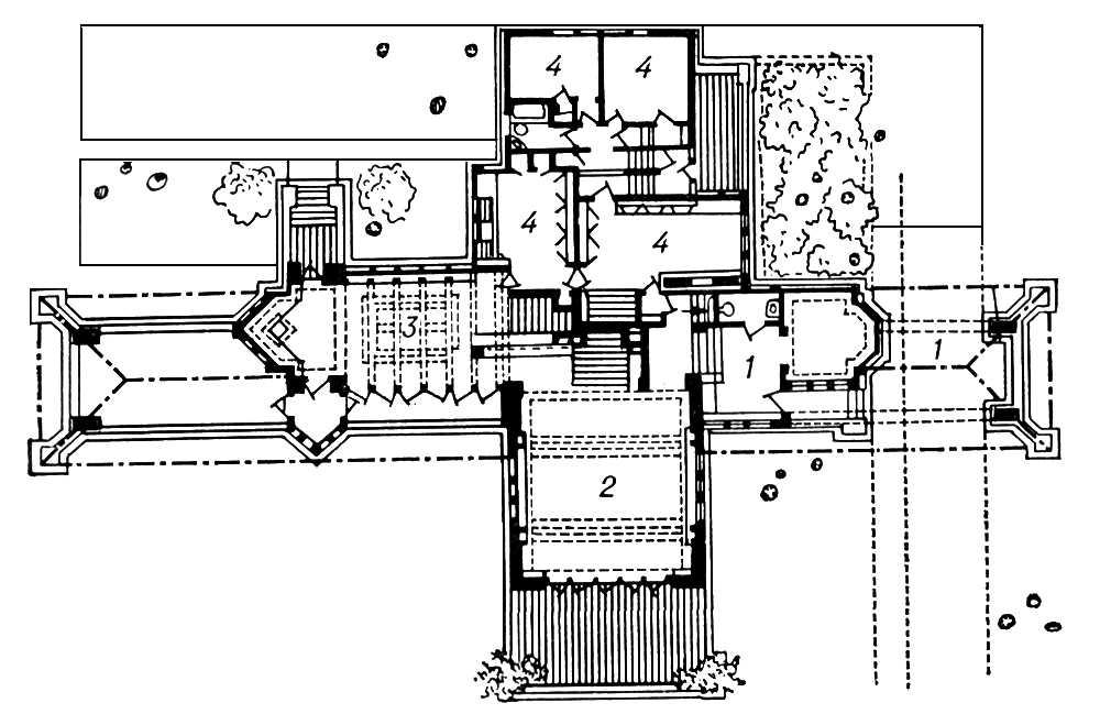
Дом Роби ( Frederick Robie House ) . 1909 г. Планы этажей.1. Вестибюль. 2. Бильярдная. 3. Детская. 4. Отопление. 5. Прачечная. 6. Часть кухни. 7. Гараж. 8. Двор. 9. Садик. 10. Общая комната. 11. Комната для гостей. 12. Кухня. 13. Комната для прислуги. 14. Столовая. 15. Балкон

Общая комната и столовая представляют собой единое пространство, разделенное лестницей и камином, являющихся « ядром » постройки.

Балкон, отделенный от интерьера сплошным рядом окон, позволяет зрительно объединить внутреннее и внешнее пространство.

Огромные свесы крыши усиливают ощущение защищенности, затеняют окна и защищают террасы и балконы от прямых солнечных лучей и осадков. « Ядро дома » четко прослеживается снаружи в виде мощного каминного массива с дымовой трубой. В доме отсутствует особняковая парадность: лестницы скромны, общий вид здания и деталей строгий. Хорошо выражен человеческий масштаб.

В проекте дома Роби четко сформулированы следующие приемы:

  • асимметрия;
  • простые объемы;
  • гладкие плоскости;
  • многоплановость;
  • горизонтальность;
  • консоли;
  • метрический ритм;
  • ленточное остекление;
  • отсутствие орнаментации;
  • гибкий план.

Источник: www.mensh.ru

Ф. Л. Райт.Дом Уиллитса в Хайленд-Парке (штат Иллинойс). 1902.

План 1-го этажа (1 — подъезд и вестибюль; 2 — гостиная; 3 — столовая; 4 — хозяйственные помещения).

Ф. Л. Райт. Дом Кауфмана («Дом над водопадом») в Бер-Ране. США. 1936.