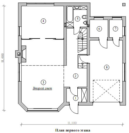
Проект загородного дома в г. Васильков, Киевская область. |
|
![]() |
||||||||||||
![]() |
||||||||||||||
| Площадь помещений: | ||||||||||||||
Общая площадь, м2 |
Жилая площадь, м2 |
|||||||||||||
| Характеристики: | ||||||||||||||
| Тип фундаментов: |
Монолитные ж/б |
|||||||||||||
| Материал наружных стен: |
Газобетон |
|||||||||||||
|
||||||||||||||
| Тип перекрытий: |
Монолитные ж/б |
|||||||||||||
| Крыша: |
Скатная |
|||||||||||||
| Тип кровли: | Металлочерепица | |||||||||||||
| Наружная отделка: | Облицовочный кирпич | |||||||||||||
| Наличие гаража: | Да | |||||||||||||
| Количество этажей: | 2 | |||||||||||||
| Цокольный этаж: | Нет | |||||||||||||
| Габариты дома: | 11,8х11,9 м | |||||||||||||