Рабочий проект комплекса социально-бытового назначения в с. Дмитровка Киево-Святошинского района |
|
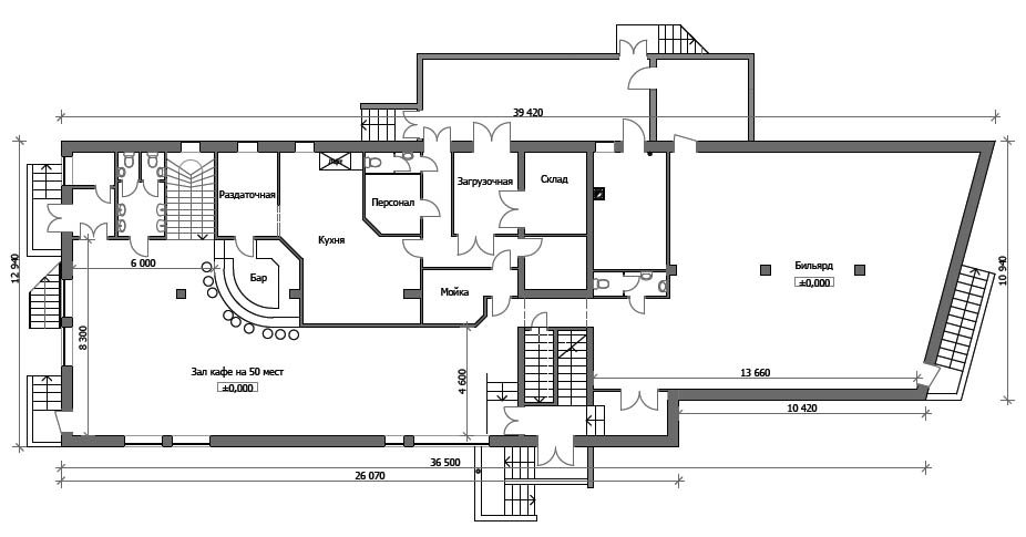
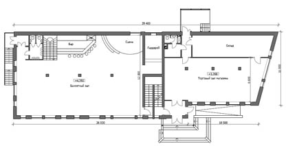
1 Этаж ![]() |
|||||||||||||
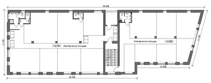
2 Этаж |
|||||||||||||||
| Площадь помещений: | |||||||||||||||
Общая площадь, м2 |
Полезная площадь, м2 |
||||||||||||||
| Характеристики: | |||||||||||||||
| Тип фундаментов: |
Монолитные ж/б плита |
||||||||||||||
| Материал наружных стен: |
Газобетон, монолитный ж/б |
||||||||||||||
| Тип перекрытий: |
Монолитные ж/б
|
||||||||||||||
| Крыша: |
Скатная |
||||||||||||||
| Тип кровли: | Металлочерепица | ||||||||||||||
| Наружная отделка: | Облицовочный кирпич, плитка | ||||||||||||||
| Количество этажей: | 3 | ||||||||||||||
| Цокольный этаж: | Да | ||||||||||||||
| Габариты дома: | 1 13,0 х 39,4 м | ||||||||||||||