Проект загородного дома на две семьи в c. Хотов по ул.Молодежной |
|
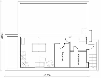
Подвал ![]() |
||||||||||||||
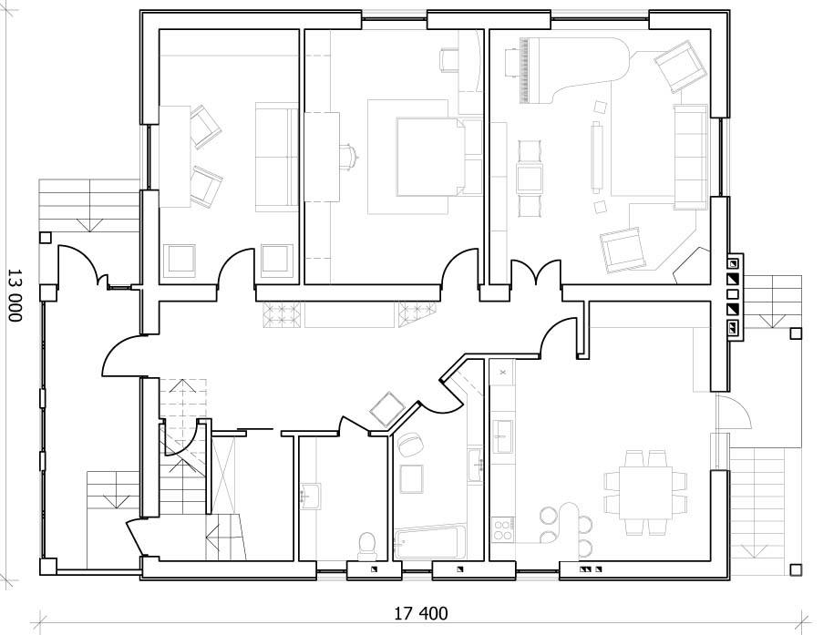
1 Этаж |
||||||||||||||||
| Площадь помещений: | ||||||||||||||||
Общая площадь, м2
|
Полезная площадь, м2 |
|||||||||||||||
| Характеристики: | ||||||||||||||||
| Тип фундаментов: |
Ленточный |
|||||||||||||||
| Материал наружных стен: |
Кирпич |
|||||||||||||||
| Тип перекрытий: |
Сборные ж/б
|
|||||||||||||||
| Крыша: |
Скатная |
|||||||||||||||
| Тип кровли: | Металлочерепица | |||||||||||||||
| Наружная отделка: | Штукатурка, дерево, камень | |||||||||||||||
| Количество этажей: | 2 | |||||||||||||||
| Цокольный этаж: | Да | |||||||||||||||
| Габариты дома: | 13,0 х 17,4 м | |||||||||||||||