Проект загородного дома в c. Гатное по ул. Южной

 

 

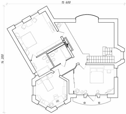
1 Этаж
   
вид 2
вид 3
    Площадь помещений:
   

Общая площадь, м2
202,1

Полезная площадь, м2
110,0

    Характеристики:
   
Тип фундаментов:
Ленточный
   
Материал наружных стен:
Кирпич
   
Тип перекрытий:
Монолитный ж/б
2 Этаж

 

   
Крыша:
Скатная
Тип кровли: Металлочерепица
Наружная отделка: Кирпич, штукатурка, плитка каменная
Количество этажей: 2
Цокольный этаж: -
Габариты дома: 15,6 х 14,2 м