Проект гостевого дома в c. Гатное по ул. Коцюбинского |
|
|
||||||||||||||
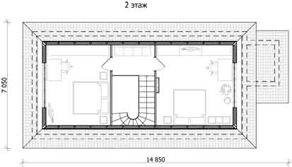
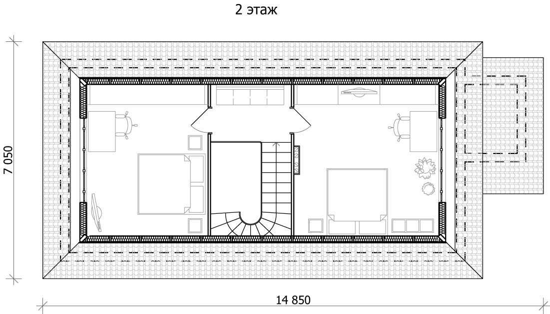
2 Этаж
|
||||||||||||||||
| Площадь помещений: | ||||||||||||||||
Общая площадь, м2
|
Полезная площадь, м2 |
|||||||||||||||
| Характеристики: | ||||||||||||||||
| Тип фундаментов: |
Ленточный, сборный
|
|||||||||||||||
| Материал наружных стен: |
Термоблок
|
|||||||||||||||
| Тип перекрытий: |
Ж/б плиты
|
|||||||||||||||
| Крыша: |
Скатная |
|||||||||||||||
| Тип кровли: | Металлочерепица | |||||||||||||||
| Наружная отделка: | Штукатурка, облицовочный камень | |||||||||||||||
| Количество этажей: | 2 | |||||||||||||||
| Цокольный этаж: | - | |||||||||||||||
| Габариты дома: | 13,8 х 6,0 м | |||||||||||||||