|
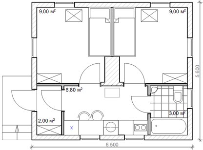
Вариант1 Вариант 2
|
|||||||||||||
| Фото1 | Фото2 | |||||||||||||
| Площадь помещений: | ||||||||||||||
Общая площадь, м2 |
Жилая площадь, м2 |
|||||||||||||
| Характеристики: | ||||||||||||||
|
Тип фундаментов: |
Монолитные ж/б |
|||||||||||||
|
Материал наружных стен: |
Газобетон |
|||||||||||||
|
Тип перекрытий: |
Сборные деревянные |
|||||||||||||
|
Крыша: |
Скатная |
|||||||||||||
| Тип кровли: | Черепица | |||||||||||||
| Наружная отделка: | Декоративная штукатурка | |||||||||||||
| Наличие гаража: | Нет | |||||||||||||
| Количество этажей: | 1 | |||||||||||||
| Цокольный этаж: | Нет | |||||||||||||
| Габариты дома: | 6,5х5,6 | |||||||||||||
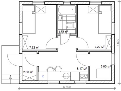
Вариант 3
|
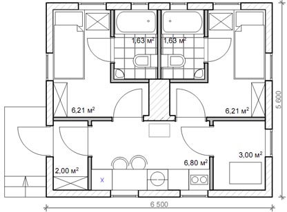
Вариант 4 |
|||||||||||||