|
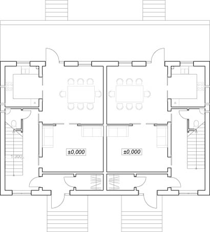
1 этаж 2 этаж |
||||||||||||||
| Фото1 | Фото2 | ||||||||||||||
| Площадь помещений: | |||||||||||||||
Общая площадь, м2 |
Жилая площадь, м2 |
||||||||||||||
| Характеристики: | |||||||||||||||
|
Тип фундаментов: |
Сборные ж/б |
||||||||||||||
|
Материал наружных стен: |
Кирпич |
||||||||||||||
|
Тип перекрытий: |
По деревянным балкам |
||||||||||||||
|
Крыша: |
Скатная |
||||||||||||||
| Тип кровли: | Металлочерепица | ||||||||||||||
| Наружная отделка: | Штукатурка, облицовочный камень | ||||||||||||||
| Наличие гаража: | Да | ||||||||||||||
| Количество этажей: | 2 | ||||||||||||||
| Цокольный этаж: | Да | ||||||||||||||
| Габариты дома: | 15,5 х 9,8 м | ||||||||||||||