|
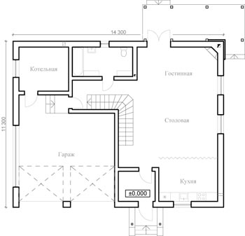
1 этаж 2 этаж |
|||||||||||||
| Площадь помещений: | ||||||||||||||
Общая площадь, м2 |
Жилая площадь, м2 |
|||||||||||||
| Характеристики: | ||||||||||||||
|
Тип фундаментов: |
Монолитные ж/б |
|||||||||||||
|
Материал наружных стен: |
Пенобетон |
|||||||||||||
|
Тип перекрытий: |
Монолитные ж/б |
|||||||||||||
|
Крыша: |
Скатная |
|||||||||||||
| Тип кровли: | Металлочерепица | |||||||||||||
| Наружная отделка: | Штукатурка | |||||||||||||
| Наличие гаража: | Да | |||||||||||||
| Количество этажей: | 2 | |||||||||||||
| Цокольный этаж: | Нет | |||||||||||||
| Габариты дома: | 11,3 х 14,3 м | |||||||||||||