|
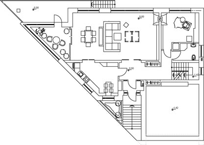
1 етаж 2 этаж
|
|||||||||||||
| чертеж 2 | чертеж 3 | |||||||||||||
| Площадь помещений: | ||||||||||||||
Общая площадь, м2 |
Жилая площадь, м2 |
|||||||||||||
| Характеристики: | ||||||||||||||
|
Тип фундаментов: |
Монолитные ж/б |
|||||||||||||
|
Материал наружных стен: |
Кирпич |
|||||||||||||
|
Тип перекрытий: |
Сборные, монолитные ж/б |
|||||||||||||
|
Крыша: |
Скатная |
|||||||||||||
| Тип кровли: |
|
|||||||||||||
| Наружная отделка: | Плитка, облицовочный кирпич | |||||||||||||
| Наличие гаража: | Да | |||||||||||||
| Количество этажей: | 3 | |||||||||||||
| Цокольный этаж: | Да | |||||||||||||
| Габариты дома: | 14,9 х 15,4 м | |||||||||||||
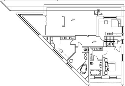
Цокольний этаж
|
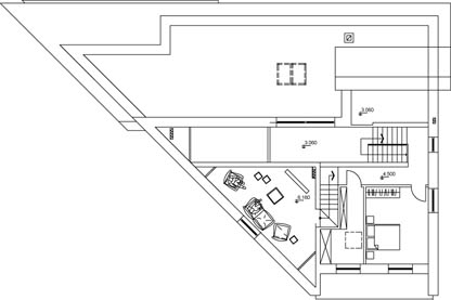
3 этаж |
|||||||||||||