Рабочий проект загородного дома в с. Гатне, ул. Барвинковая

 

 

1 Этаж
 

фото2

 

фото3

Площадь помещений:

Общая площадь, м2
257.30

 

Жилая площадь, м2
113.00

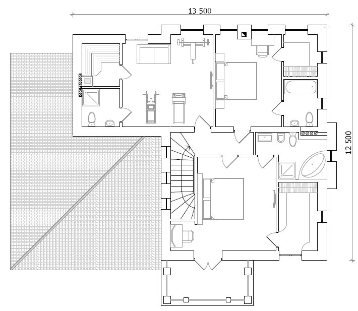
2 Этаж
Характеристики:
Тип фундаментов:
Монолитные ж/б
Материал наружных стен:
Газобетон
Тип перекрытий:
Сборные ж/б
Крыша:
Скатная
Тип кровли: Битумная черепица
Наружная отделка: Облицовочный кирпич
Наличие гаража: Да (2 машиноместа)
Количество этажей: 2
Цокольный этаж: Нет
  Габариты дома: 14,9 х 16,3 м